Annonseringsdato: 06.06.2025
Merknadsfrist: 01.07.2025
Saksnummer: PLAN-​​2022-20540​
Arealplan-ID: 66340000
Åpne i planregister

Status: Offentlig ettersyn - plan
Bydel: Årstad

Årstad, gnr. 160, bnr. 184 m.fl. Områdereguleringsplan.

Om endringene av planforslaget

Planforslaget til områdereguleringsplan for Slettebakken var på høring og offentlig ettersyn i perioden 19. august 2023 til 6. oktober 2023. 

Plan- og bygningsetaten har i ettertid gjort noen endringer og justeringer i planforslaget, og gjennomfører nå en ny og begrenset høring av disse endringene.  

Her er en oversikt som viser de foreslåtte endringene. Du kan lese mer om endringene i endringsnotatet nederst på siden. Du kan også trykke her for å se kartfortelling om det justerte planforslaget.

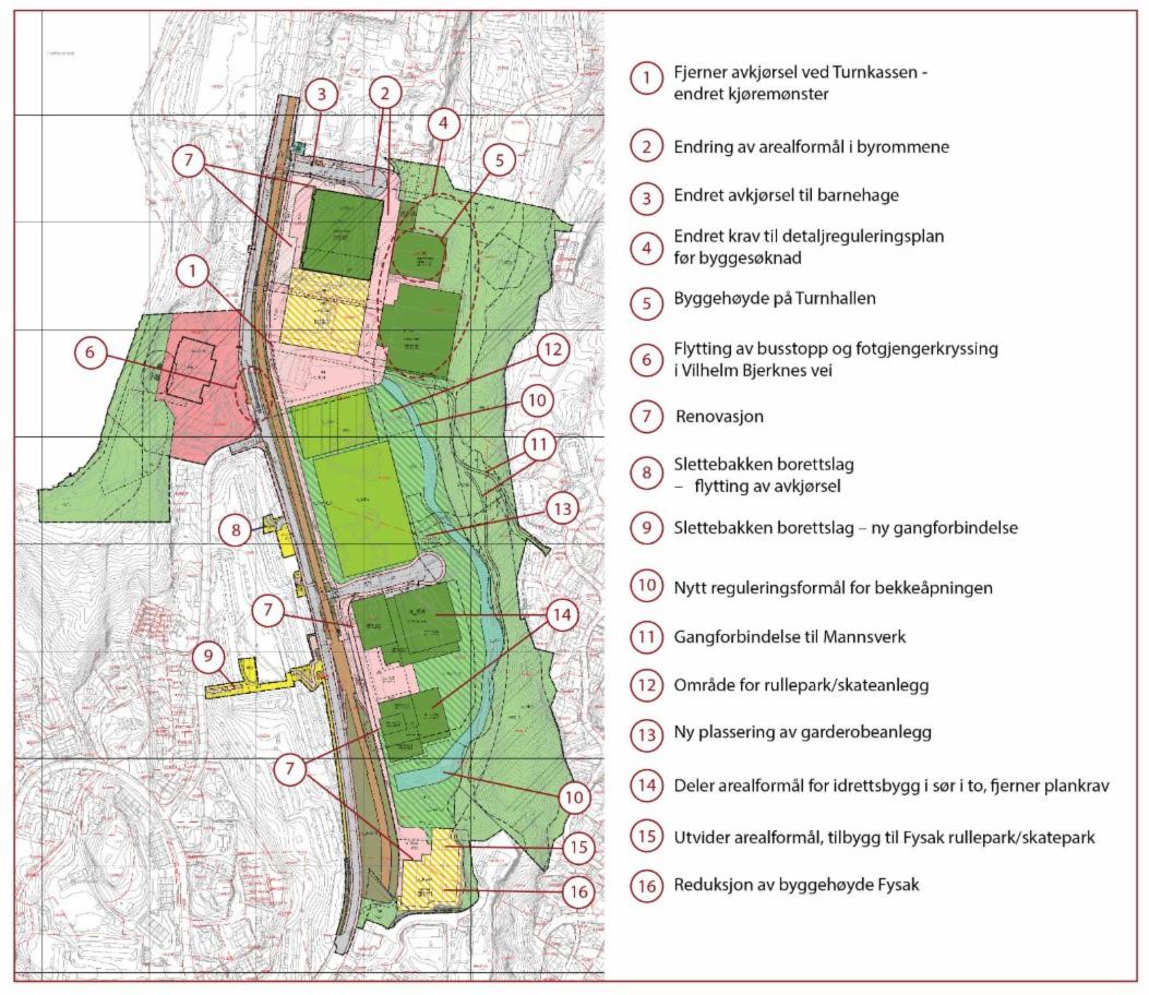
Bildet viser kart over planområdet. Mange av områdene er nummerert fra 1-16 med forklaring på hva som er foreslått endret. Du kan lese om endringene i endringnotatet som ligger vedlagt nederst i kunngjøringen.
Oversikt over forslag til endringer i planforslaget
Bilde: Bergen kommune

Har du innspill til endringsforslaget?

Myndigheter, eiere og festere av eiendommer og andre som er berørt av endringsforslaget inviteres til å komme med synspunkter og innspill. Innspill kan sendes via den blå og hvite merknadsboksen på denne siden.

Vi ønsker å få inn merknad til de konkrete endringene, siden tidligere innkomne uttalelser og merknader fremdeles vil følge saken til politisk behandling.

Innspill kan også sendes direkte via epost til postmottak.planogbygg@bergen.kommune.no

Brevpost: 

Bergen kommune
Plan- og bygningsetaten
Postboks 7700, 
5020 Bergen

Mottatte innspill besvares ikke direkte, men vil bli vurdert og tatt med i den videre saksbehandlingen.

Ved henvendelse, vennligst oppgi saksnummer.

Vær oppmerksom på at merknaden din kan bli gjenstand for offentlig innsyn, i tråd med offentlighetsloven og arkivlovgivning.

Du kan følge behandlingen i de politiske utvalgene på kommunens nettsider: https://www.bergen.kommune.no/politikk/politiskeutvalg

Saksdokumenter: 

Merknad

Har du merknad til planforslaget? Send oss dine synspunkter og innspill ved å klikke lenken under.

Vær oppmerksom på at merknaden din kan bli gjenstand for offentlig innsyn, i tråd med offentlighetsloven og arkivlovgivning

Send merknad